Daniel Cram / Sutton Group Grande Prairie Professionals
MLS® # A2277341
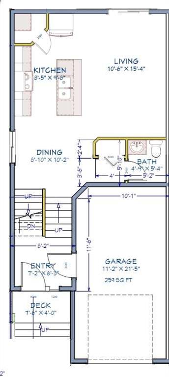
THE NEW PARKER LUXURY DUPLEX PRESALE- CONSTRUCTION STARTS JULY 2025 AND BACKING ONTO AN EASEMENT, January 2026 possession! -! Modern Luxury 3 bed 2.5 bath Duplex featuring a new design with the Master Bedroom retreat over the garage, up a few more stairs you will find 2 more bedrooms, the main bathroom and the laundry room that accomodates a side by side washer dryer. The contemporary exterior will keep you impressed every time you pull into the driveway. Come on in and be amazed by the incredible kitchen ...