Phil Yan / Grand Realty

1505 15 Avenue SW, Commercial for sale in Sunalta Calgary , Alberta , T3C 0Y1

 MLS® # A2279684

0 bathrooms

Sign up to View

Days on Market

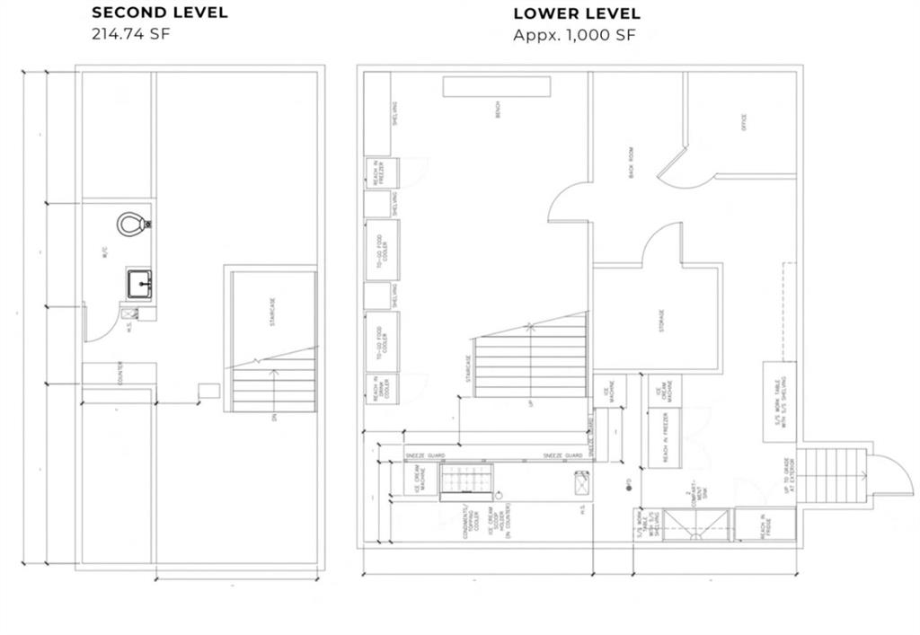
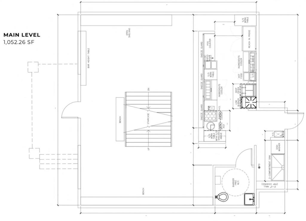
This is an excellent opportunity to acquire a restaurant located in a free-standing building in a prime location, offering strong visibility and easy customer access. The lease runs until February 28, 2031, with a competitive basic rent plus operating costs of $5,000 per month. The space can be converted to other cuisine concepts (please note Japanese cuisine and fried chicken concepts are not permitted). With its standalone presence, favorable lease terms, and flexible use options, this restaurant is well ...

Read More

Essential Information

  • MLS® #
    A2279684
  • Year Built
    2000
  • Property Type
    Business
  • MLS® #
    A2279684
  • Year Built
    2000
  • Property Type
    Business
  • MLS® #
    A2279684
  • Year Built
    2000
  • Property Type
    Business

Community Information

  • Postal Code
    T3C 0Y1
  • Postal Code
    T3C 0Y1
  • Postal Code
    T3C 0Y1

$105,000

1505 15 Avenue SW

Schedule Tour
Contact Agent

$479/month
Est. Monthly Payment
$
$
%
Learn More