Manny Verdugo / CDN Global Advisors Ltd.

Unit 8, 1925 39 Street NE, Commercial for sale in North Airways Calgary , Alberta , T2E 6S8

 MLS® # A2277382

0 bathrooms

Sign up to View

Days on Market

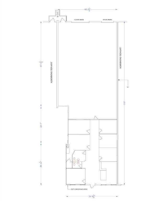
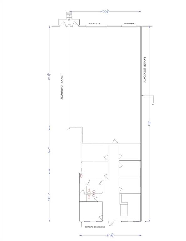
4,105 SF industrial bay in a prime Northeast location near 39 Avenue and 19 Street NE. Recently updated office space with new paint and floors. Warehouse space also recently painted. The office area totals approximately 1,718 SF and includes a reception area, five private offices, a kitchenette/lunchroom, and washrooms, including one barrier-free washroom. The 2,387 SF warehouse offers a functional wide layout (approximately 39 ft wide x 65 ft deep) with 18 ft clear ceiling height, 100 amps of power (TBV), ...

Read More

Essential Information

  • MLS® #
    A2277382
  • Year Built
    1977
  • Property Type
    Industrial
  • MLS® #
    A2277382
  • Year Built
    1977
  • Property Type
    Industrial
  • MLS® #
    A2277382
  • Year Built
    1977
  • Property Type
    Industrial

Community Information

  • Postal Code
    T2E 6S8
  • Postal Code
    T2E 6S8
  • Postal Code
    T2E 6S8

$13/sqft

Unit 8, 1925 39 Street NE

Schedule Tour
Contact Agent

$1/month
Est. Monthly Payment
$
$
%
Learn More